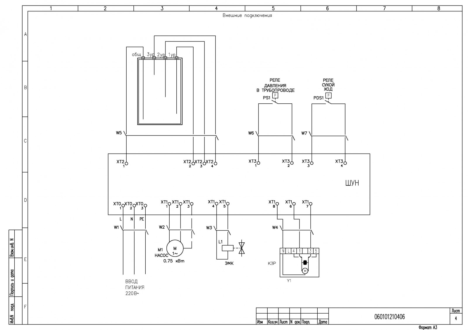
Щит управления (ЩУ)
Щит управления на основе ПР-200 производства компании "ОВЕН" предназначен для управления насосом и клапанами.
Функции:
- Автоматическое, циклическое наполнение и опустошение пробоотборника, по показаниям кондуктометрических датчиков уровня.
- Защитная функция по понижению давления в трубопроводе (прекращение отбора при низком давлении).
- Индикация состояния насоса и электромагнитного клапана, режима работы (руч/авто), аварии, уровня в пробоотборнике.
- На дверце шкафа размещены переключатели:
- «РЕЖИМ РАБОТЫ / РУЧ-0-АВТ»;
- два переключателя для запуска насоса и ЭМК в ручном режиме
«РУЧ.ПУСК НАСОС» и «РУЧ.ПУСК ЭМК».

Описание работы ЩУ:
В автоматическом режиме работы шкаф управления выполняет отбор проб по следующему алгоритму.
1. Цикл первоначального включения в автоматический режим работы.
Если при переключении шкафа управления в автоматический режим работы уровень воды в ёмкости выше нижнего датчика уровня, происходит включение насоса и выполняется слив воды до того момента, пока вода не освободит нижний датчик уровня. После этого выполняется переход на цикл промывки ёмкости. Если уровень воды в ёмкости ниже датчика нижнего уровня, происходит подача воды в ёмкость до датчика нижнего уровня и выполняется переход на цикл промывки ёмкости.
2. Цикл промывки ёмкости перед использованием.
Перед отбором пробы выполняется цикл промывки, который заключается в обмене воды путём включения клапана набора воды и сливного насоса. Цикл промывки выполняется по времени, которое подбирается эмпирическим путём задаётся оператором на лицевой панели управления, программируемого реле. По окончании промывки установка переходит к циклу отбора пробы и ожидания анализа измерений.
3. Цикл отбора пробы и ожидания анализа измерений.
После подготовки ёмкости к работе выполняется набор воды до датчика среднего уровня. При касании воды датчика среднего уровня клапан набора воды выключается и включается таймер отсчёта времени на выполнение анализа. Время анализа задаётся оператором на лицевой панели программируемого реле. По окончании выполнения анализа установка переходит к шагу опустошения ёмкости.
4. После выполнения анализа включается насос и выполняется слив жидкости из ёмкости до датчика нижнего уровня, после чего система переходит снова к циклу промывки ёмкости перед следующим циклом отбора пробы для анализа.
Модификации:
Обсуждается в процессе проектирования
Гарантия
Гарантийный срок эксплуатации - 12 месяцев.
Контакты
Наш офис
109428, Москва, БЦ Юнион, Рязанский проспект 24 корпус 2, 11 этаж, офис 1101
График: Пн-Пт 09:00 - 18:00
Наш склад
109456, Москва, 1-й Вешняковский проезд, дом 2, строение 6
График: Пн-Пт 09:00 - 18:00

